Thiết kế nội thất căn hộ Palm Heights 70m2 de190110

Thiết kế nội thất căn hộ Palm Heights 70m2 de190110 tạo cho bạn cảm giác thăng hoa, thoải mái, thư giãn tuyệt đối sau những giờ làm việc căng thẳng và chính nơi đây phải được thiết kế ấn tượng, đặc sắc, đúng theo cá tính của chính mình. Một thiết kế nội thất chung cư đẹp, tinh tế là điều mong ước của mỗi gia đình và là nơi giữ lửa hạnh phúc lâu dài.

Căn hộ này do chính Noithatchungcu thiết kế theo phong cách địa trung hải với màu chủ đạo là xanh và trắng, một chút gỗ đã tạo ra hương vị tự do, không khí vùng biển cực kỳ thoáng mát và ấn tượng, phù hợp với nhu cầu, cá tính của gia chủ.

Tổng quan dự án căn hộ Palm Heights

Dự án Palm Heights luôn được săn đón nhiệt tình bởi những tiện ích và dịch vụ đạt tiêu chuẩn quốc tế. Tọa lạc tại Quận 2, nằm dọc theo con sông Giồng Ông Tố yên bình, có nhiều trung tâm thương mại, trường học, y tế đẳng cấp đồng thời có khu vui chơi cho trẻ em. Hệ thống an ninh đảm bảo, khuôn viên chỉ dành riêng cho khu dân cư và Noithatchungcu đang thực hiện một số dự án thiết kế căn hộ chung cư tại đây, cùng tham khảo nhé!

Một số thông tin khác về dự án căn hộ Palm Heights

Chủ đầu tư: Keppel Land – Tiến Phước – Trần Thái

Diện tích đất: 1,68Ha

Chức năng dự án: Căn hộ cao cấp, office-tel, thương mại, Shophouse

Vị trí: Đường Song Hành, Phường An Phú, Quận 2, Hồ Chí Minh

Chi tiết dự án thiết kế nội thất căn hộ Palm Heights 70m2

Chủ đầu tư: Chị Hạnh

Diện tích căn hộ: 70m2

Vị trí công trình: Căn hộ Palm Heights, đường Song Hành, Phường An Phú, Quận 2, Hồ Chí Minh

Diện tích thiết kế: 70m2

Phong cách thiết kế

Phong cách Địa Trung Hải được gia chủ sử dụng cho căn hộ này, đồng thời ốp gỗ, mây tre đan và kết hợp cùng 2 màu chủ đạo xanh và trắng, mang đến sự thân thiện, hòa mình với thiên nhiên như cảm giác được tự do, vùng vẫy trong biển.

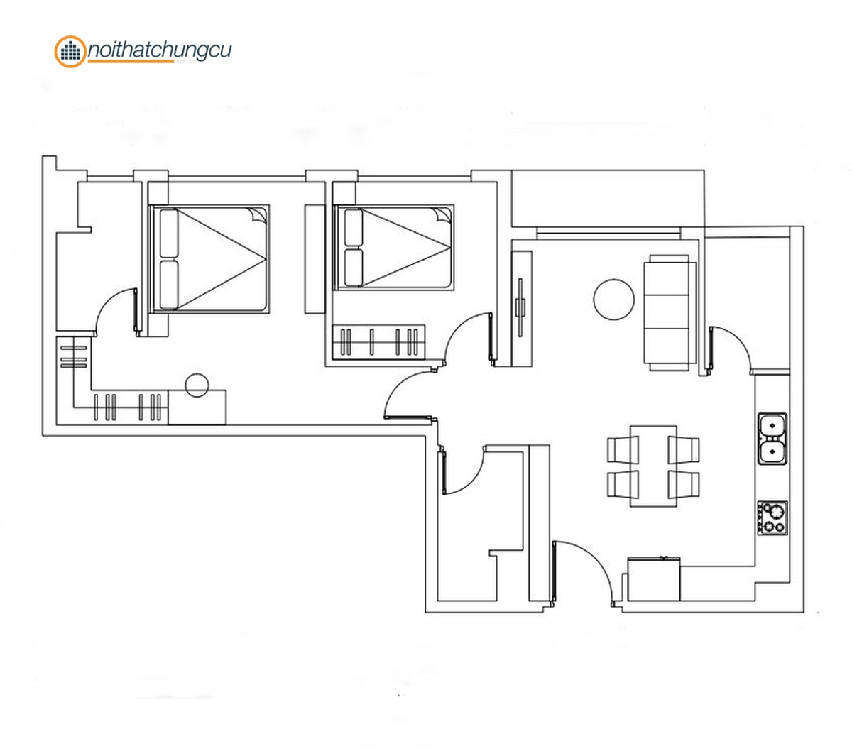
Mặt bằng thiết kế

thiet-ke-noi-that-palm-heights-70m2-mat-bang-thiet-ke-11-de190110-decox-design

Phòng khách

Phòng bếp

Phòng ngủ master

Phòng ngủ nhỏ

WC

 

Bạn muốn biết giá thành thi công của mẫu thiết kế trên, hoặc cần tư vấn về quy trình làm việc, xin hãy để lại email hoặc câu hỏi tại đây:


Chỉ còn 2 ngày cuối cùng. Căn hộ của bạn sắp được nhận bàn giao ? Đăng ký tại đây để đặt lịch hẹn tư vấn tư vấn bởi kiến trúc sư và nhận bản vẽ concept thiết kế miễn phí trị giá 1.500,000vnđ từ Decox. Số lượng có hạn.

Noithatchungcu.com.vn tự hào dịch vụ nội thất chung cư chuyên nghiệp, thư viện mẫu nội thất chung cư lớn nhất Việt Nam
Chúng tôi cam kết
1. Sản phẩm thi công đúng 100% so với bản vẽ thiết kế.
2. Sử dụng nguyên liệu đạt chứng chỉ chất lượng quốc tế, đảm bảo sức khỏe cho gia đình bạn.
3. Bảo hành tất cả các sản phẩm 2 năm, bảo hành chất lượng gỗ trọn vòng đời sử dụng.
4. Cam kết mức giá tốt nhất với nhiều ưu đãi bất ngờ trong năm 2020.
5. Cam kết hỗ trợ giá lên đến 10% khi mua sắm tại hệ thống siêu thị điện máy Nguyễn Kim

Lầu 8 Tòa nhà M-H Building 728-730 Võ Văn Kiệt, Phường 01, Quận 5, TP Hồ Chí Minh 

0931 348 538‬ - (028) 36200560

info@noithatchungcu.com.vn

Video nội thất chung cư đang được quan tâm