Tổng quan dự án căn hộ Saigon South Residences
Chủ đầu tư: Công ty TNHH Phát Triển Phú Mỹ Hưng
Diện tích đất: 32.902 m2
Chức năng dự án: Khu căn hộ cao cấp
Vị trí: Nguyễn Hữu Thọ, Nhà Bè, Tp.HCM
Chi tiết dự án thiết kế nội thất căn hộ Saigon South Residences 100m2
Chủ đầu tư: Anh B
Diện tích căn hộ: 100m2
Vị trí công trình: Nguyễn Hữu Thọ, Nhà Bè, Tp.HCM
Diện tích thiết kế: 100m2
Phong cách thiết kế
Thiết kế nội thất chung cư với tông màu trung tính, màu trắng xám làm chủ đạo mang đến làm cho không gian dịu mát, dễ chịu.
Kiến trúc sư Noithatchungcu tận dụng tối đa không gian với cách bố trí nội thất tối giản nhưng thanh lịch và đầy lôi cuốn
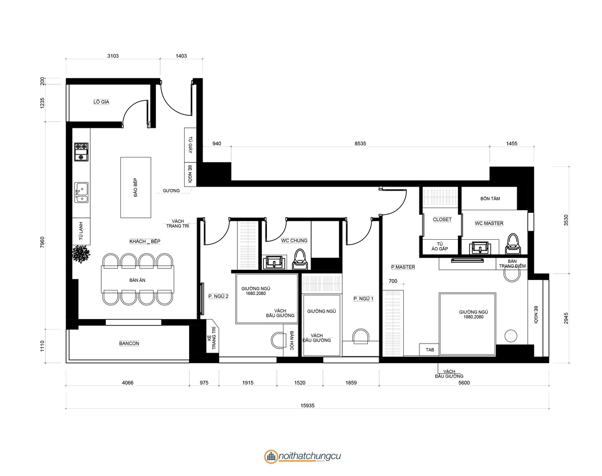
Mặt bằng thiết kế

Phòng bếp







Phòng ngủ master



WC phòng ngủ master

Phòng ngủ nhỏ 1



Phòng ngủ nhỏ 2





WC chung


>> Xem thêm: Các mẫu thiết kế nội thất chung cư Saigon South Residences
Bạn muốn biết giá thành thi công của mẫu thiết kế trên, hoặc cần tư vấn về quy trình làm việc, xin hãy để lại email hoặc câu hỏi tại đây:
Chỉ còn 2 ngày cuối cùng. Căn hộ của bạn sắp được nhận bàn giao ? Đăng ký tại đây để đặt lịch hẹn tư vấn tư vấn bởi kiến trúc sư và nhận bản vẽ concept thiết kế miễn phí trị giá 1.500,000vnđ từ Decox. Số lượng có hạn.
Noithatchungcu.com.vn tự hào dịch vụ nội thất chung cư chuyên nghiệp, thư viện mẫu nội thất chung cư lớn nhất Việt NamChúng tôi cam kết
1. Sản phẩm thi công đúng 100% so với bản vẽ thiết kế.
2. Sử dụng nguyên liệu đạt chứng chỉ chất lượng quốc tế, đảm bảo sức khỏe cho gia đình bạn.
3. Bảo hành tất cả các sản phẩm 2 năm, bảo hành chất lượng gỗ trọn vòng đời sử dụng.
4. Cam kết mức giá tốt nhất với nhiều ưu đãi bất ngờ trong năm 2020.
5. Cam kết hỗ trợ giá lên đến 10% khi mua sắm tại hệ thống siêu thị điện máy Nguyễn Kim
Lầu 8 Tòa nhà M-H Building 728-730 Võ Văn Kiệt, Phường 01, Quận 5, TP Hồ Chí Minh
0931 348 538 - (028) 36200560
info@noithatchungcu.com.vn

Video nội thất chung cư đang được quan tâm















