Tư vấn thiết kế nội thất chung cư Lexington 48.5m2 cho thuê
Tổng hợp bởi: Noithatchungcu
———
Noithatchungcu – dịch vụ thiết kế nội thất chung cư trọn gói chuyên nghiệp, thư viện mẫu nội thất chung cư lớn nhất Việt Nam.
Lầu 8, MH Tower, 730 Võ Văn Kiệt, F1, Q5, TPHCM
Hotline: 0901 411 489
Tư vấn thiết kế nội thất chung cư Lexington 48.5m2 cho thuê. Giải pháp thiết kế cho căn hộ nhỏ được nhà thiết kế áp dụng để tối ưu công năng phù hợp với mục đích cho thuê. Chức năng của căn hộ được tối ưu bởi phong cách đơn giản, tính tiện lợi cũng được tối ưu để tạo sự thoải mái trong sinh hoạt hàng ngày.
Yêu cầu thiết kế:
Thiết kế đơn giản, hiện đại, trẻ trung. Tone màu nhẹ nhàng, nữ tính, đảm bảo công năng. Mục đích sử dụng ban đầu cho thuê sau đó để ở.
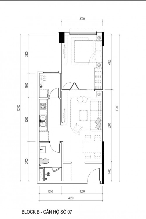
Một điều dễ nhận thấy ở căn hộ này là ngoài nhược điểm về diện tích nhỏ, căn hộ không có nhiều cửa sổ hoặc ban công tiếp xúc với bên ngoài nên nếu không được bố trí một cách hợp lý dễ gây cảm giác bức bối, chật chội. Qua mặt bằng hiện trạng, nhà thiết kế của Nội thất chung cư nhận thấy không gian sinh hoạt chung chưa được tối ưu. Bức tường ngay cửa chính làm không gian hẹp hơn.

Phương án thiết kế
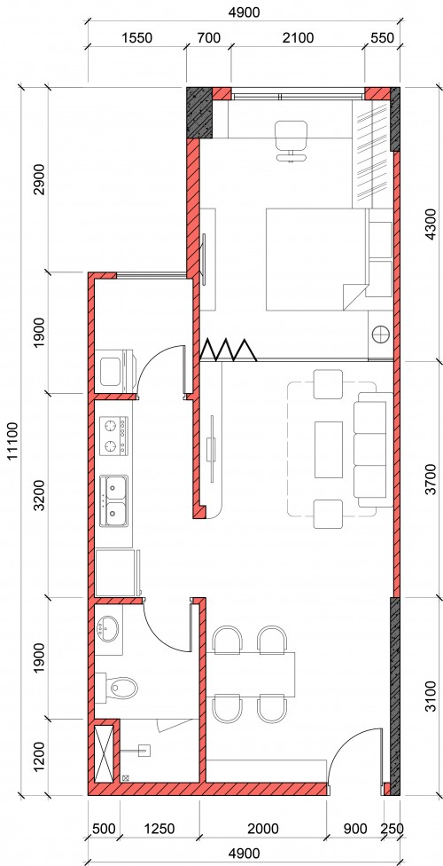
Thay đổi lớn nhất trong cách bố trí không gian là quyết định phá bỏ vách ngăn ở phòng ăn và thay đổi vị trí của bàn ăn để mở rộng không gian cho khu vực sinh hoạt chung. Tối ưu không gian bằng cách sử dụng và bố trí đồ nội thất một cách khoa học.
Phòng khách
Để tạo độ sáng, nhà thiết kế lựa chọn những tone màu trung tính như trắng, trắng ngọc trai. Tone màu này là lựa chọn tối ưu giúp không gian sáng, tạo cảm giác căn phòng rộng hơn, việc phối màu cũng như sử dụng màu nhấn dễ dàng hơn. Phòng khách sử dụng ghế sofa đôi có thiết kế hiện đại, trẻ trung. Vách sofa không quá cầu kỳ, có thể sử dụng bức tranh họa tiết nhẹ nhàng làm điểm nhấn trên nền tường sáng.

Tone màu trắng vừa làm sáng không gian lại dễ dàng cho việc phối màu với đồ nội thất và các chi tiết trang trí.

Sử dụng tranh trang trí đơn giản cho bức tường sau ghế sofa

Không gian bếp
Không gian bếp không quá rộng nên thiết kế hướng đến việc đảm bảo tính công năng. Tủ bếp có thể sử dụng màu trắng hoặc gỗ nhạt để làm sáng không gian tạo cảm giác rộng hơn. Mặt bếp làm bằng đá chống bẩn, chống trầy. Khuyến khích sử dụng bếp từ thay cho bếp gas để đảm bảo an toàn.

Gian bếp ưu tiên công năng sử dụng

Màu trắng được sử dụng để tạo sự thống nhất trong ý tưởng thiết kế cũng như tạo sự thoáng rộng cho không gian.
Khu vực bàn ăn
Khi lựa chọn đồ nội thất, bạn nên lưu ý đến kích thước và kiểu dáng sao cho phù hợp với ý tưởng thiết kế chung và nhất là diện tích của căn phòng. Với một khoảng không gian nhỏ, lựa chọn bàn ăn có thiết kế đơn giản và nhỏ gọn cho 4 người là hoàn toàn phù hợp. Để không gian không đơn điệu, nhà thiết kế sử dụng đèn thả và tranh tường để làm điểm nhấn.

Không gian ngủ
Phòng ngủ là không gian khá quan trọng, thiết kế cần đảm bảo tính công năng, mặt bằng bố trí có giường ngủ, tủ tivi, tủ quần áo, bàn học kết hợp bàn trang điểm và kệ sách, bàn học bố trí gần cửa sổ để lấy ánh tự nhiên. Tủ quần áo sử dụng cánh lùa dễ sử dụng, tiết kiệm diện tích.
Thiết kế nội thất chung cư Lexington 48.5m2 cho thuê – phòng ngủ


Nguồn ảnh: Pinterest
Bài viết “Tư vấn thiết kế nội thất chung cư Lexington 48.5m2 cho thuê” được tư vấn bởi Nhà thiết kế Diễm Phương – Noithatchungcu.com.vn – dịch vụ nội thất chung cư chuyên nghiệp, thư viện mẫu nội thất chung cư lớn nhất Việt Nam.
Trò chuyện cùng chuyên gia thiết kế nội thất – Nhận ngay giải pháp trang trí nội thất dành riêng cho bạn( ngay hôm nay ): 0901 411 489 – (028) 36200560
Thực hiện bởi: Noithatcungcu
———
Noithatcungcu – dịch vụ thiết kế nội thất chung cư trọn gói chuyên nghiệp, thư viện mẫu nội thất chung cư lớn nhất Việt Nam.
Lầu 8, MH Tower, 730 Võ Văn Kiệt, F1, Q5, TPHCM
Bạn muốn biết giá thành thi công của mẫu thiết kế trên, hoặc cần tư vấn về quy trình làm việc, xin hãy để lại email hoặc câu hỏi tại đây:
Chỉ còn 2 ngày cuối cùng. Căn hộ của bạn sắp được nhận bàn giao ? Đăng ký tại đây để đặt lịch hẹn tư vấn tư vấn bởi kiến trúc sư và nhận bản vẽ concept thiết kế miễn phí trị giá 1.500,000vnđ từ Decox. Số lượng có hạn.
Noithatchungcu.com.vn tự hào dịch vụ nội thất chung cư chuyên nghiệp, thư viện mẫu nội thất chung cư lớn nhất Việt NamChúng tôi cam kết
1. Sản phẩm thi công đúng 100% so với bản vẽ thiết kế.
2. Sử dụng nguyên liệu đạt chứng chỉ chất lượng quốc tế, đảm bảo sức khỏe cho gia đình bạn.
3. Bảo hành tất cả các sản phẩm 2 năm, bảo hành chất lượng gỗ trọn vòng đời sử dụng.
4. Cam kết mức giá tốt nhất với nhiều ưu đãi bất ngờ trong năm 2020.
5. Cam kết hỗ trợ giá lên đến 10% khi mua sắm tại hệ thống siêu thị điện máy Nguyễn Kim
Lầu 8 Tòa nhà M-H Building 728-730 Võ Văn Kiệt, Phường 01, Quận 5, TP Hồ Chí Minh
0931 348 538 - (028) 36200560
info@noithatchungcu.com.vn

Video nội thất chung cư đang được quan tâm















