Mẫu tư vấn thiết kế nội thất chung cư Vạn Đô 96m2
Thiết kế nội thất chung cư Vạn Đô 96m2 được tư vấn bởi Nhà thiết kế Diễm Phương của Noithatchungcu. Với 96m2 cho căn hộ 2 phòng ngủ, Nhà thiết kế tạo ra những không gian rộng, thoải mái và tiện nghi.
Yêu cầu thiết kế:
Bàn đảo bếp sử dụng mặt đá, tủ lạnh side by side, hướng bếp cố định. Đập cửa mở rộng thành cửa lớn ra ban công. Tủ quần áo phòng ngủ master ngang 4m. Sàn gỗ tự nhên màu sáng. Ánh sáng nhiều tầng. Hệ thống điều hòa: 3 máy dạng khe lạnh.
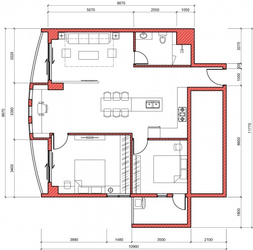
Mặt bằng hiện trạng
Mặt bằng tư vấn thiết kế – phương án 1
Phương án 1:
- Khu vực bếp tách riêng bàn đảo và bàn ăn, tận dụng bàn đảo kết hợp quầy bar.
- Phòng khách có diện tích đủ để đặt tủ tivi và vách ngăn nhẹ giữa khách và bếp tạo tạo sự thông thoáng.
- Cửa phòng ngủ master đối diện cửa phòng ngủ phụ. Dùng khoảng tường được tạo bởi hành lang giữa 2 phòng ngủ làm phòng thay đồ với tủ áo chữ L.

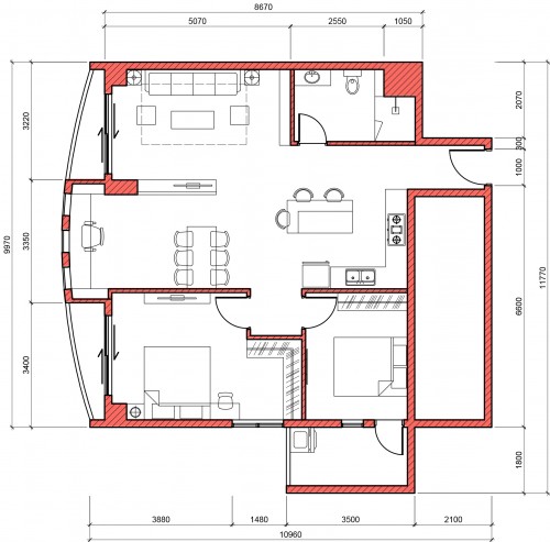
Mặt bằng tư vấn thiết kế – phương án 2
Phương án 2:
- Khu vực bếp và ăn khá thoáng khi có sự kết hợp giữa bàn đảo và bàn ăn lối giao thông thuận tiện, dễ dàng.
- Tivi phòng khách treo trên vách ngăn nhẹ giữa phòng khách và bếp để tăng thêm diện tích lối giao thông.
- Cửa phòng ngủ master gần bàn làm việc để thuận tiện trong việc sử dụng. Tủ quần áo chạy dọc theo tường. không phân chia thành khu thay đồ riêng biệt.
Khu vực bàn ăn + bếp
Không gian bếp khá rộng và thoáng nên việc sử dụng bàn đảo kết hợp bar hoặc bàn ăn là một lựa chọn thông minh tạo nên không gian mở, mang đến sự sang trọng và hiện đại. Thiết kế gian bếp chữ L giúp tận dụng không gian góc một cách hiệu quả, dễ dàng phân chia khu vực trong tủ bếp, giao thông đi lại dễ dàng.
Nhà thiết kế lựa chọn tủ lạnh side by side cho thiết kế nội thất căn hộ này. Thiết kế sang trọng, độc đáo là nét đặc trưng của tủ lạnh side by side, tủ có vỏ ngoài bằng kính hay kim loại cao cấp cùng nhiều màu sắc đa dạng để phù hợp với nhiều không gian.

Bàn đảo làm điểm nhấn cho gian bếp mang đến một phong cách riêng biệt, độc đáo.
Bàn đảo kết hợp với bàn ăn là sự lựa chọn tối ưu cho không gian.
Phòng khách
Lấy tông màu trung tính làm màu chủ đạo, khu vực phòng khách sử dụng ghế sofa có thiết kế hiện đại, vách sofa không quá cầu kỳ, có thể sử dụng bức tranh họa tiết màu nhẹ nhàng làm điểm nhấn trên nền tường sáng.
Trên nền tường sáng, bức tranh đơn giản dễ dàng nổi bật bên cạnh bộ ghế sofa làm chủ thể cho không gian.
Vách tivi đơn giản với kệ tivi bên dưới được tận dụng làm kệ trang trí.

Khu vực bàn làm việc
Bàn làm việc ở vị trí cửa sổ với view nhìn đẹp là một thiết kế lý tưởng không chỉ tận dụng được nguồn ánh sáng tự nhiên mà còn tạo cảm hứng, giảm căng thẳng, mệt mỏi. Kệ sách hai bên tường không chỉ đảm bảo tính công năng mà còn là điểm nhấn trang trí hoàn hảo.
Bàn làm việc được bố tri cạnh cửa sổ, không chỉ có hướng nhìn đẹp…
… mà còn đón được ánh sáng và không khí tự nhiên từ bên ngoài.
Phòng ngủ master
Vẫn sử dụng gam màu trung tính là màu chủ đạo tạo sự nhẹ nhàng, sang trọng, trang nhã. Phòng ngủ được thiết kế để tối ưu mọi công năng, ngoài giường ngủ, mặt bằng bố trí còn có giường ngủ, tủ tivi, tủ quần áo, bàn trang điểm và kệ sách.



Thiết kế nội thất chung cư Vạn Đô 96m2 – phòng ngủ.
Không gian ngủ phụ
Phòng ngủ phụ có diện tích không quá rộng nên chỉ có thể bố trí bàn học hoặc bàn trang điểm, tủ quần áo và giường ngủ. Thiết kế trên nền tường màu trắng để tạo cảm giác rộng hơn; tuy nhiên có thể sử dụng một màu nhấn không quá cầu kỳ ở khu vực đầu giường để tránh nhàm chán mà vẫn nhẹ nhàng, thanh lịch.
Tranh hoặc màu nhấn cho vách tường đầu giường để tránh gây nhàm chán.

Khu vệ sinh
Tông màu chủ đạo trung tính với điểm nhận là màu gỗ sáng hướng đến sự nhẹ nhàng, sang trọng.

Thiết kế nội thất chung cư Vạn Đô 96m2 – phòng tắm.
Nguồn ảnh: Pinterest
Bài viết được tư vấn bởi Nhà thiết kế Diễm Phương – Noithatchungcu.com.vn
Trò chuyện cùng chuyên gia thiết kế nội thất – Nhận ngay giải pháp trang trí nội thất dành riêng cho bạn( ngay hôm nay ): 0901 411 489 – (028) 36200560
Thực hiện bởi: Noithatcungcu
———
Noithatcungcu – dịch vụ thiết kế nội thất chung cư trọn gói chuyên nghiệp, thư viện mẫu nội thất chung cư lớn nhất Việt Nam.
Lầu 8, MH Tower, 730 Võ Văn Kiệt, F1, Q5, TPHCM
Bạn muốn biết giá thành thi công của mẫu thiết kế trên, hoặc cần tư vấn về quy trình làm việc, xin hãy để lại email hoặc câu hỏi tại đây:
Chỉ còn 2 ngày cuối cùng. Căn hộ của bạn sắp được nhận bàn giao ? Đăng ký tại đây để đặt lịch hẹn tư vấn tư vấn bởi kiến trúc sư và nhận bản vẽ concept thiết kế miễn phí trị giá 1.500,000vnđ từ Decox. Số lượng có hạn.
Noithatchungcu.com.vn tự hào dịch vụ nội thất chung cư chuyên nghiệp, thư viện mẫu nội thất chung cư lớn nhất Việt NamChúng tôi cam kết
1. Sản phẩm thi công đúng 100% so với bản vẽ thiết kế.
2. Sử dụng nguyên liệu đạt chứng chỉ chất lượng quốc tế, đảm bảo sức khỏe cho gia đình bạn.
3. Bảo hành tất cả các sản phẩm 2 năm, bảo hành chất lượng gỗ trọn vòng đời sử dụng.
4. Cam kết mức giá tốt nhất với nhiều ưu đãi bất ngờ trong năm 2020.
5. Cam kết hỗ trợ giá lên đến 10% khi mua sắm tại hệ thống siêu thị điện máy Nguyễn Kim
Lầu 8 Tòa nhà M-H Building 728-730 Võ Văn Kiệt, Phường 01, Quận 5, TP Hồ Chí Minh
0931 348 538 - (028) 36200560
info@noithatchungcu.com.vn

Video nội thất chung cư đang được quan tâm















